IM电竞(中国)官网-共享电竞新生态

2025封关资产【凤凰海岸天禧洋房】洋房居住报告:舒适度实测-IM电竞酒店

2025封关资产【凤凰海岸天禧洋房】洋房居住报告:舒适度实测

2025-11-14

  项目雄踞三亚湾核心地段,凤凰路、解放路、迎宾路、育新路、海南环岛旅游公路等“黄金动脉”在此交织,可轻松抵达三亚各个板块。

2025封关资产【凤凰海岸天禧洋房】洋房居住报告:舒适度实测(图1)

  北连河东路、凤凰路,西南紧邻解放路,驾车约8分钟即达三亚高铁站(约3公里),驾车约20分钟即达三亚凤凰国际机场(11公里),驾车约15分钟到达环岛高速G98火车站互通(5.9公里),距离有轨电车水城路车站约1.3公里;

  海居铂尔曼度假酒店、喜来登福朋酒店、希尔顿欢朋酒店、希尔顿花园酒店、凤凰水城凯莱酒店、红树林度假世界酒店等。

  红树林度假世界、火车头海鲜广场、旺毫超市、广百纳超市、三亚第三市场、明珠广场、解放路步行街等。

  医疗教育方面,三亚中心医院、南部战区海军第二医院、四川大学华西三亚医院、实验小学、金鸡岭小学、第四中学等资源遍布在项目周边。

2025封关资产【凤凰海岸天禧洋房】洋房居住报告:舒适度实测(图2)

  最难得的是,项目距离海边仅约900米,真正的步行可达,住在这里可解锁丰富的海岸生活场景。

  想体验航海乐趣可去鸿洲国际游艇码头,感受海风拂面的自由;偏爱休闲运动可前往半山半岛帆船港,在碧波荡漾中畅享快乐。

2025封关资产【凤凰海岸天禧洋房】洋房居住报告:舒适度实测(图3)

  组团指标:三期B组团总占地110956.26㎡,计容建面 63206.56万㎡,绿化率40.01%,容积率约1,总规划456户

  总车位:1233个( 580 个地下充电桩车位,653 个地上非机动车停车位)

2025封关资产【凤凰海岸天禧洋房】洋房居住报告:舒适度实测(图4)

  洋房外立面大面积采用米白色+咖啡红真石漆、仿石材砖、金属铝板和双层low-e玻璃,窗墙比超高的同时,采光、景观和隔音隔热等效果一并拉满

2025封关资产【凤凰海岸天禧洋房】洋房居住报告:舒适度实测(图5)

2025封关资产【凤凰海岸天禧洋房】洋房居住报告:舒适度实测(图6)

  洋房主入口,项目不惜斥资500万打造约50米宽界面,它大面积选用曲面板和天然石材,再辅以热带植物与叠水景观,宛如一座流动的艺术殿堂。

2025封关资产【凤凰海岸天禧洋房】洋房居住报告:舒适度实测(图7)

  项目还在园林中塑造了具有异域美感的风情沙地,多种耐旱型沙棘植物及热带景观植被层层铺展,既兼顾生态韧性,也放大松弛氛围。

2025封关资产【凤凰海岸天禧洋房】洋房居住报告:舒适度实测(图8)

  考虑到业主归家情绪,项目大手笔打造双大堂,大堂与电梯厅以仿玉石砖、连纹地砖铺陈,金属铝板装饰条勾勒线条,于细节处彰显质感。

2025封关资产【凤凰海岸天禧洋房】洋房居住报告:舒适度实测(图9)

  项目特别选用透光云石亚克力、莱姆石、连纹地砖、福鼎黑小料石等昂贵材料来勾勒精致空间。

2025封关资产【凤凰海岸天禧洋房】洋房居住报告:舒适度实测(图10)

  美学示范区入口,项目精神文化象征“8米高的凤凰雕塑”立于其间,让访客的抵达皆是尊崇感。

2025封关资产【凤凰海岸天禧洋房】洋房居住报告:舒适度实测(图11)

  项目结合热带东方主义元素,营造了凤凰广场、下沉式水韵庭院等主题空间,每一处设计都在演绎三亚特有的自然韵律。

2025封关资产【凤凰海岸天禧洋房】洋房居住报告:舒适度实测(图12)

  这里原来已配备健身房、舞蹈室、棋牌室、乒乓球室、观景台、泳池等,生活丰富。

  深研业主需求后,此次更是加入了高尔夫球模拟器练习室、电竞社、瑜伽室、桌球室、业主餐厅等多元功能间。

2025封关资产【凤凰海岸天禧洋房】洋房居住报告:舒适度实测(图13)

  B1组团共规划11栋5层小洋房,一梯一户,南北通透,能形成充裕采光与高效对流风。

  给大家重点介绍建面约169-172㎡的A5户型,它把空间感、人性化、品质感全都揉进了产品里。

  走出电梯是私享独立前厅,兼具私密性与尊贵感,超4㎡入户玄关成为了家与外界的过渡空间。

  往里走,LDKB一体化设计瞬间将气场打开,约5.9米大横厅与独立餐厅分别通向南北双阳台,这里是承载全家人日常生活的超大聚厅。

2025封关资产【凤凰海岸天禧洋房】洋房居住报告:舒适度实测(图14)

  最绝的是酒店式主卧套房,它不仅配置主卫和步入式衣帽间,更设计了 L型大飘窗,近乎两面墙的采光视野,把窗外美景最大化地搬进了室内。

2025封关资产【凤凰海岸天禧洋房】洋房居住报告:舒适度实测(图15)

  超奢阔的空间格局之上,项目还下血本将所有户型的交标武装到底,主打一个诚意满满。

  第一,客厅甄选亚马逊蓝大理石背景墙、白雪公主玉石与金属板,全屋中央空调,尽显高奢质感。

  第二,所有户型都配有洗碗机、蒸烤一体机、燃气灶、升降式油烟机等,A4A5户型还额外配置市场价数万元、508升超大容量的嵌入式冰箱。

2025封关资产【凤凰海岸天禧洋房】洋房居住报告:舒适度实测(图16)

  第三,卫浴空间采用通高岩板墙与蜂窝铝板吊顶,消除传统拼接痕迹的同时,颜值也很高。

  可以说,凤凰水城这次的洋房,直接把所有惊喜一次性给到购房者,真的让人很服气。

2025封关资产【凤凰海岸天禧洋房】洋房居住报告:舒适度实测(图17)

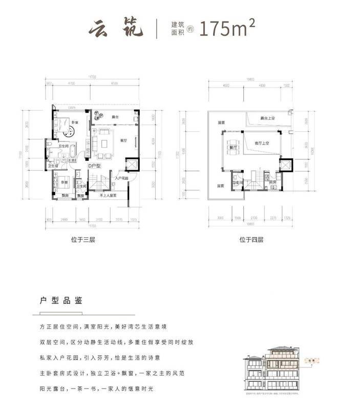
  目前,天誉叠拼院墅在售建面约105-175㎡,有上中下叠及联排别墅产品,非常丰富。

2025封关资产【凤凰海岸天禧洋房】洋房居住报告:舒适度实测(图18)

  特别声明:以上内容(如有图片或视频亦包括在内)为自媒体平台“网易号”用户上传并发布,本平台仅提供信息存储服务。

  网友发帖称中奖1200万却被骗光,彩票店老板回应:中奖人是一中年男子,曾买300万新房

  被扫地出门的贵公子,线+女人别乱穿!拒绝花衣服,搭配有质感,才能显贵提气质

  宝妈垃圾赛道大避雷!见到赶紧跑!线%”,儿童奶粉营销不能搞数字游戏 新京报快评

  华为Nova15系列:2.5D直屏+非全系金属中框,12 月不上线英寸副屏,行业首台阔折叠屏IM电竞官方入口IM电竞官方入口


本文由:IM电竞,IM电竞平台,IM电竞网站,IM电竞酒店提供

持续引领电竞酒店行业的发展潮流

联系我们
0312-8349556
right-code.jpg